

LS型螺旋輸送機一直被廣(guǎng)泛用於國民經(jīng)濟各部門,如建材、冶金、化工(gōng)、電力、煤炭、機械、輕工、糧食及食品行業,適宜輸送粉狀、顆(kē)粒狀、小塊狀物料,如水(shuǐ)泥、煤粉、糧食、化(huà)肥、灰渣(zhā)、沙子、焦(jiāo)炭等。不宜輸送易變質、粘性大、易結塊的物料,LS螺旋(xuán)輸(shū)送機工作環境溫(wēn)度(dù)通常為(wéi)-20~40℃,輸送物料(liào)的溫度一般為-20~80℃,LS螺旋輸送機(jī)適宜水平和小傾角布置,傾角以不超(chāo)過15°為宜,如傾斜角度過大請選用GX係列螺旋(xuán)輸送機,或與我公司技術部門(mén)聯係進行單獨設計。

1.承載(zǎi)能力大、安全可(kě)靠。
2.適(shì)應性強、安裝維修方便(biàn)、壽命長(zhǎng)。
3.整機體積小、轉速高(gāo)、確保快速均勻輸(shū)送。
4.密封性好、外殼采用無縫鋼管製作,端部采用法蘭互相連接成一體,剛性好。


LS型螺旋輸送機是利用(yòng)旋轉(zhuǎn)的螺(luó)旋將被輸送(sòng)的物料沿固定的機殼內推移而進行輸送工作,頭部及尾部軸(zhóu)承移(yí)至殼體(tǐ)外,吊軸承(chéng)采用滑(huá)動軸承設有防塵(chén)密封裝置,軸瓦一般采用(yòng)粉末冶金(jīn),輸送水(shuǐ)泥采用毛氈軸瓦,吊軸和螺旋軸采用滑塊連(lián)接。



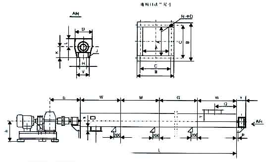
一台螺旋輸(shū)送機通常由螺旋機本體、進出裝置、驅動裝置三大(dà)部分組成。
螺旋機本體由頭節、中間(jiān)節、尾(wěi)節三種組成。一般情況下,出廠總(zǒng)裝時將中(zhōng)間節按長度長短依次排列,較長的中間節靠近頭節,相同長度的中間(jiān)節則挨在一起(qǐ),如果有特殊要求,則在訂貨時給(gěi)出排列順序。
在頭節內裝有支推軸承承受軸向力,在中間節和尾節內裝有用軸承支承螺旋軸,此外,在尾節內還裝有可軸向移(yí)動的(de)徑向軸承以補償螺旋軸長(zhǎng)度的誤差和適應溫度的變化。螺旋麵的形式有實體螺旋(S製法)和帶式螺旋(D製法)兩種。各螺旋軸(zhóu)之間采用法蘭式聯接,保證了聯接軸的互換性,便於維修。
機蓋為瓦片(piàn)式(shì)並用蓋扣夾緊在機殼上,若需改進(jìn)密封性能,用(yòng)戶可自行在機蓋與機殼間加防水粗帆布。
進、出料裝置有進料(liào)口(kǒu),方型出(chū)料口,手(shǒu)推式出料口,齒條式出料口四種。由用(yòng)戶在使用(yòng)現場(chǎng)在機體上開口焊接。布置進出料口位置(zhì)時應注意(yì)保證料口至端部的距離,同時避免料口與吊軸承加油杯、機殼聯接(jiē)法蘭、底座等相碰。
驅動裝置有ZQ係列(liè)減速(sù)器+Y係列電動機,YTC齒輪減速電機兩種。
輸送產品
您正(zhèng)在瀏覽的是:新鄉市大漢振動機械有限公司生產的螺旋輸送機設備,如果您對螺旋輸送機型號規格、價格感興趣的話,可以隨時撥打電話和草莓污视频聯係!